
Die auf der Start-Seite beschriebenen Fertigungsunterlagen befinden sich inzwischen in der Ausgabe 1.3 auf einer DVD mit praktisch allen gezeichneten Details des Ausbaus. Sie enthält auch den Inhalt der Planungsunterlagen-CD mit den Basismobil-Zeichnungen. Die Fertigungsunterlagen bestehen aus:
- Beschreibung aller 17 Hauptgruppen auf 164 Seiten mit Angaben zu Besonderheiten der Konstruktion und Fertigung einschließlich 268 Fotos
- 181 2-d-Zeichnungen in den Formaten dxf, dwg und pdf
- Unterlagen zu Materialmengen, Ausbau-Gewichten und ein beispielhaftes Fahrzeug-Handbuch
- ein auch separat verfügbares Kapitel über Heckträger
Mit diesen Unterlagen kann der Ausbau eines Jumper/Boxer L3H3 oder Ducato L4/H3 ab Bj. 2006 komplett oder teilweise gefertigt werden, oder sie können als Basis für eigene Ausbauten verwendet werden. Die Einbauzeichnungen enthalten auf einem eigenen Layer die hinterlegte Fahrzeugstruktur und die benachbarten Bauteile in Phantom-Darstellung. Alle Zeichnungen in den Formaten A4 bis A1 sind so beschriftet, dass in einem Ausdruck ab A4 alle Texte lesbar sind.
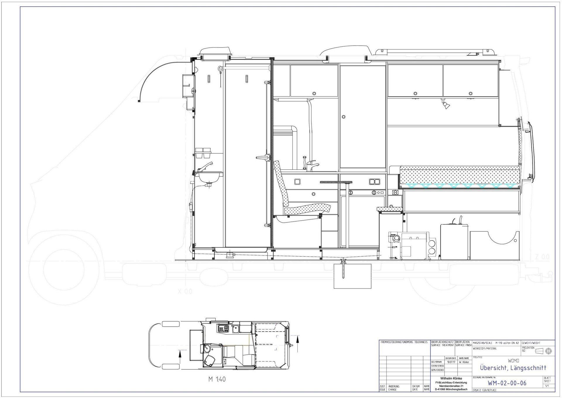
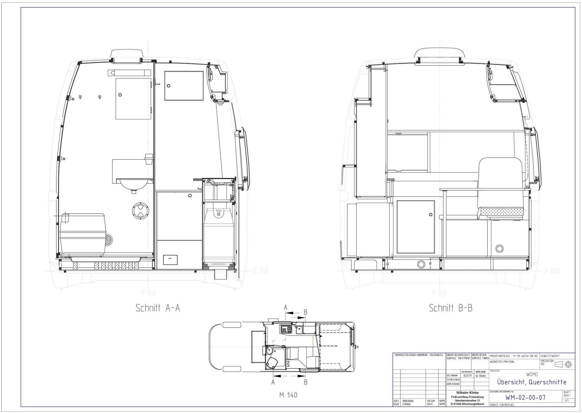
Zeichnungs-Beispiele

Längsschnitt durch das ausgebaute Fahrzeug

Querschnitte

Einbauzeichnung Wasseranlage einschl. Boiler

Zeichnung Küchenschubladen
Eingeschlossen ist ein Update- und Ergänzungs-Service und die Beantwortung aller Fragen. Alternativ zur DVD-Version besteht auch die Möglichkeit zum Download.
Weitere Informationen zu den Fertigungsunterlagen, z.B. eine Kapitelbeschreibung Ihrer Wahl mit CAD-Zeichnungen zur Information über die Darstellungstiefe und Verwendbarkeit der CAD-Daten, oder eine Übersicht zu Heckträgern erhalten Sie über:


